0

Code: WH180/4000A

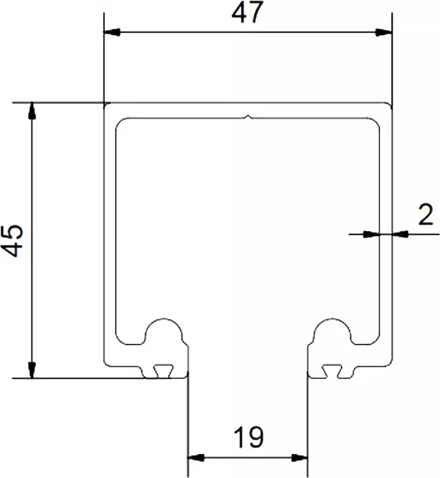
Aluminium anodised track to suit Soltaire (& the now obsolete Securefold 50kg) sliding and folding door systems

  • Lengths - 2000, 3000, 4000 and 6000mm
Length:
Excl Incl

$284.43 NZD excl GST

Track 180-4000 Aluminium Anodised
lgth

0 ITEM
×